埼玉県川口市坂下町2丁目|5,399万円の新築一戸建て|まいほーむ
| 価格 | 5,399万円 ![]() |
||||
|---|---|---|---|---|---|
| 所在地 | 埼玉県川口市坂下町2丁目
この地域周辺の物件を見る |
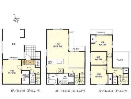
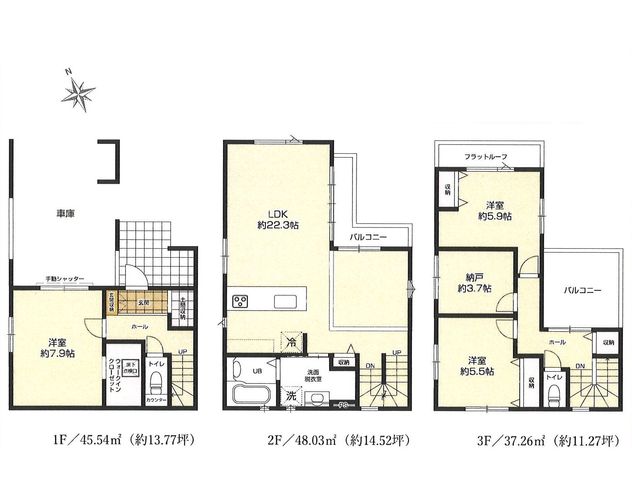
土地面積 | 86.57m² (26.18坪) | 建物面積 | 130.83m2 |
| 築年月 | 2026年8月築 | 間取り | 3SLDK (-) | ||
| 交通 |
埼玉高速鉄道 鳩ヶ谷 徒歩13分
埼玉高速鉄道 新井宿 徒歩25分 |
||||
| 特徴 |
|
|---|---|
| セールスコメント | 駅徒歩13分の好立地に誕生した、ゆとりの新築戸建て。 22.3帖の広々LDKは開放感たっぷりで、ご家族が自然と集まる心地よい空間です。 リネンスペースやシューズインクローク、ウォークインクローゼット、3.7帖の納戸など収納力も充実し、すっきりとした暮らしを実現。 食洗機や浴室乾燥機など設備も充実しています。さらに開放的なルーフバルコニー付きで、休日の楽しみ方も広がります。 快適性と機能性を兼ね備えた一邸です。 |
| 採光面 | - | 構造/階数 | 木造/地上3階建 |
|---|---|---|---|
| 建ぺい率 | 60(%) | 容積率 | 200(%) |
| 駐車場 | 有 | 現況/引渡し | -/2026年9月上旬 |
| 土地権利 | 所有権 | 私道負担面積 | - |
| 接道状況 | - | 用途地域 |
第一種住居地域
|
| セットバック | - | 法令上の制限 | - |
| 地目 | - | 地勢 | 0 |
| 建築確認番号 | 第KBI-YKH26-10-0264号 | 都市計画 | 市街化区域 |
| 取引態様 | 仲介 | ||
| 情報更新日 | 2026年04月26日 | 次回更新日 | 2026年05月10日 |
| 小学校区 | 川口市立鳩ヶ谷小学校 (埼玉県川口市) 埼玉県川口市立鳩ヶ谷小学校学区の他の物件を見る |
中学校区 | 鳩ヶ谷中学校 (埼玉県川口市) 埼玉県川口市立鳩ヶ谷中学校学区の他の物件を見る |
|---|
| 価格 | 万円 | ||
|---|---|---|---|
| 年利率 | % |
||
| ボーナス払い | 返済年数 | ||
| 頭金 | 直接入力する | 万円 | |

毎月のご返済額 |
ボーナス(×年2回) |
物件価格5,399万円 |
※「ホームページを見た」と
お伝え下さい。
【物件番号:RHS-B00131-007802】

種別から探す
価格から探す
月々返済額から探す
LDK22.3帖×ルーフバルコニー SIC・WIC・納戸付きで収納力◎